Services
Planning and Design
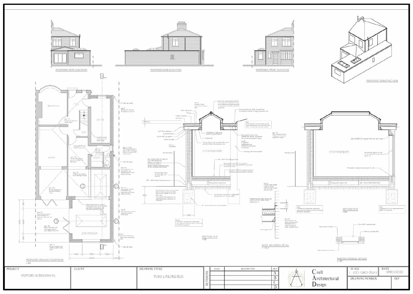
Crell Architectural Design have a wealth of experience in obtaining planning permission for you, whether it be for a small extension or a new build property. We have the tools and knowledge to make the process as timely and smooth as possible.
We initially meet with you to chat through your ideas and to guide you with our opinions on more cost effective ways of achieving your goals with our design knowledge, pointing out any possible pitfalls.
We then follow up with an email confirming our services, including all incurred fees.
Once commissioned to carry out works we would embark on a full laser survey of your property.
Initial drafts of existing and proposed plans would be discussed at a second meeting, making any required changes.
Final draft would be emailed for confirmation that everything is to your liking.
Submission made to your local council and application managed by ourselves through to fruition.
Building Regulations
In a nutshell, planning is required to show the council how an extension/building will look once completed as opposed to what it looks like now. Hence the requirement for existing and proposed plans.
Building regulation drawings show the council how the structure will be built and how it will stand up, what materials will be used, has a structural engineer confirmed the steel supports, are the correct size etc.



